EN
Menu image

Modèle Osier (DDP-002/003)

Maison unifamiliale isolée
À construire
3 chambres
Prix à venir
Cottage

Un joli cottage, garage simple (en option garage double), trois chambres à coucher… voici L’Osier! Hall d’entrée fermé avec garde-robe, salon, salle à manger et cuisine à aires ouvertes, grand ilot dans la cuisine et garde-manger de type walk-in. 3 chambres à l’étage et une belle chambre de bain. Salle de lavage à mi-étage. Terrain en sus. Prix sur demande.||A pretty cottage, a single garage, three bedrooms… introducing the Osier! Separate entrance hall with closet, open-concept living room and kitchen, large island in the kitchen and walk-in pantry. 3 bedrooms upstairs and a beautiful bathroom. Mid-level laundry room. Lot not included. Price upon demand.

Caractéristiques

3
Chambres
1
Salle de bains
1
Salle d'eau
1
Garage Simple

Particularités

822 pi2
Premier étage
1091 pi2
Étage
268 pi2
Garage
30 pi
Largeur
2181 pi2
Superficie totale

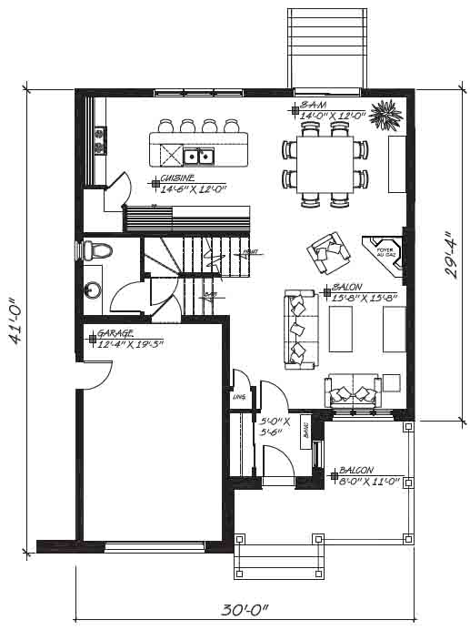
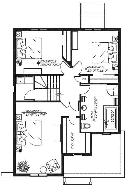
Détails des pièces

Pièce Dimensions
Chambre des maîtres 12'-8" x 19'-6"
Chambre des enfants 13'-0" x 12'-0"
Chambre des enfants 13'-0" x 12'-0"
Cuisine 14'-6" x 12'-0"
Salon 15'-8" x 15'-8"
Salle à manger 14'-0" x 12'-0"
This site is registered on wpml.org as a development site. Switch to a production site key to remove this banner.